


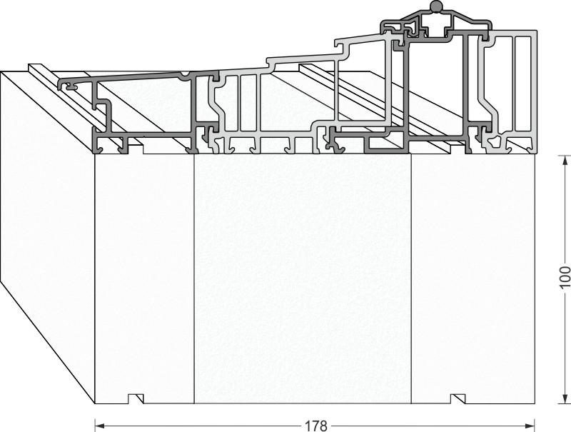
greenteQ Изолационен профил за основи на сградата с повдигаща се и плъзгаща се врата 2350x100/103x180, фрезован, без PVC-greenteQ Изолационен профил за основи на сградата с повдигаща се и плъзгаща се врата 2350x …

Идентификатор на продукта:2172763037
Височина
EACH
Опаковъчна единица: 4EACH