


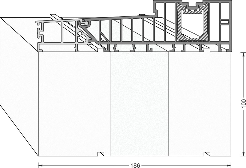
greenteQ spodní izolační podklad.profil pro HS-portály-zdvižně/posuvné dveře 2350x100/103x187,5, frézovaný, bez PVC-vrstvy pro systém Siegenia EcopassgreenteQ spodní izolační podklad.profil pro HS-portály-zdvižně/posuvné dveře 2350x100/103x …
ID produktu:2172763039
Výška
ks
Balící jednotka: 4ks