


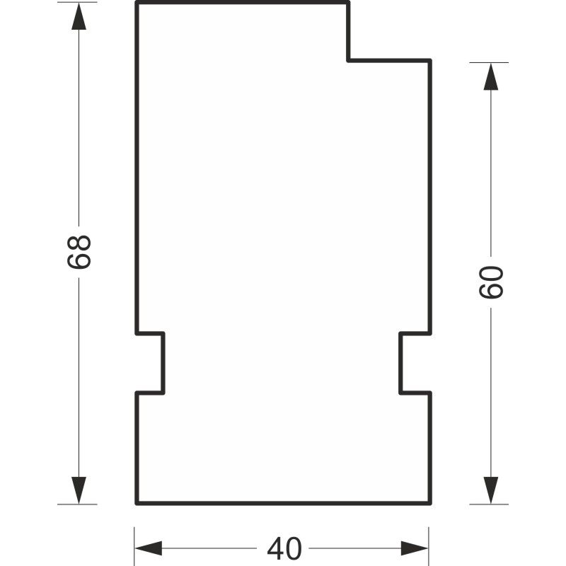
greenteQ izolační parapetní profil pro WDVS, vysoce těsnící ,U-hodnota = 0,95, 2350 x 40 x 60mm, vhodný pro Profine 70 ADgreenteQ izolační parapetní profil pro WDVS, vysoce těsnící ,U-hodnota = 0,95, 2350 x 40 x …
ID produktu:2172760174
ks
Balící jednotka: 6ks