- Home
- / greenteQ
- / Montage und Befestigungstechnik
- / Montagesysteme
- / Montage mit Unterbaudämmprofilen Hebeschiebetür
- / greenteQ Unterbaudämmprofil HST hochdämmend für VEKA Vekaslide 82
Produktbeschreibung:
Das greenteQ Unterbaudämmprofil für Schwellenprofile ersetzt herkömmliche PVC Unterbauprofile und wird zur thermisch getrennten Auflage von Hebe-Schiebe-Türen eingesetzt, um den steigenden Anforderungen an den Wärmeschutz (EnEV) gerecht zu werden. Einfache Verarbeitbarkeit, ausgezeichnete Wärmedämmung und die Herstellung in beliebigen Querschnitten ermöglichen eine optimale Lösung.
Das greenteQ Unterbaudämmprofil vereint höchste Festigkeit mit ausgezeichneter Wärmedämmung, ist etwa ein Drittel leichter als herkömmliche Profile und erreicht einen Lambdawert von 0,045 W/mK. Ausgezeichnete konstruktive Eigenschaften wie hohe Steifigkeit, Langzeitstabilität und Schraubbarkeit ohne Vorbohren mit handelsüblichen Fensterbau-/ Spanplattenschrauben eröffnen Einsatzmöglichkeiten in Bereichen wo bisher oft Wärmebrücken in Kauf genommen werden mussten.
Der Trend zu größeren Hebe-Schiebe-Türen erhöht die Belastung auf das Unterbaudämmprofil, das dank der hohen Festigkeit des greenteQ Unterbaudämmprofils Kräfte sicher ins Mauerwerk ableitet. Mit einer Bruchdehnung von über 10% gleicht es Untergrundunebenheiten ohne Schäden aus, erlaubt das Eindrücken von kleinen Steinen ohne Bruchrisiko und ermöglicht einfache Stützwinkelmontage. Sein diffusionsoffenes Verhalten fördert bei Feuchtigkeit eine schnelle Austrocknung, während die Dimensionsstabilität und Frost-Tau-Wechselbeständigkeit (und isotropes Verhalten) eine zuverlässige Funktion über Jahre hinweg sicherstellen. Mit einer Stapelkontur lassen sich verschiedene Einstandshöhen flexibel anpassen.
Produkteigenschaften:
- KEINE WÄRMEBRÜCKE - KEINE KONDENSATION
- Ausgezeichnet wärmedämmend und höchst belastbar
- Unempfindlich gegenüber Feuchtigkeit und Frost – kein Quellen und Schwinden
- Keine Langzeitveränderung in Dimension und Festigkeit
- Geringes Gewicht - leichtes Handling
- Recycelbar und sortenrein - erfüllt alle Anforderungen an nachhaltiges Bauen
- Alterungsbeständig, fäulnisbeständig und unverottbar
- Sämtliche Abdichtungs- und Versiegelungsmaßnahmen wie Dichtbänder und Folien können sicher am Material angebracht werden, auch beflammbar
- Flexibel anpassbar, auch direkt auf der Baustelle
- Mit handelsüblichen Werkzeugen nachträglich bearbeitbar
- Viele Kombinationsmöglichkeiten
- Verschnittstücke weiter verwendbar
- 2 massive außenliegende Tragschichten von 40 und 50 mm garantieren eine sichere Lastabtragung auf breiter Basis. Die Unterlegklötze können sicher im Außenbereich angeordnet werden
- Montagewinkel lassen sich ohne Vorbohren direkt in durchgängig tragfähiges Material verschrauben
- Die Verschraubung von oben erfolgt in eine ausreichend breite Tragschicht
Technische Daten:
- Das greenteQ Unterbaudämmprofil hat eine Grundlänge von 2.350 mm. Auf Anfrage sind auch kundenindividuelle Anfertigungen in Länge (max. 6 m) und Breite möglich
- Druckfestigkeit bei 10% Stauchung an EN 826 angelehnt: 1,75 N/mm²
- Druckfestigkeit bei 2% Stauchung an EN 826 angelehnt: 0,95 N/mm²
- Schraubenauszug bei 40 mm Verankerungslänge Ø7,5 mm: 825 N
- Zulässige Spannung (N/mm²) bei 2% Langzeitverformung und Dauerlast: 0,58 N/mm²
- Wärmeleitfähigkeit Bemessungswert nach EN 12667:0,045 (W/mK)
- Brandverhalten nach DIN 4102-1:B1
Herstellerinformation: VBH Holding GmbH, Siemensstraße 38,DE 70825, Korntal-Münchingen, Email: info@vbh.de
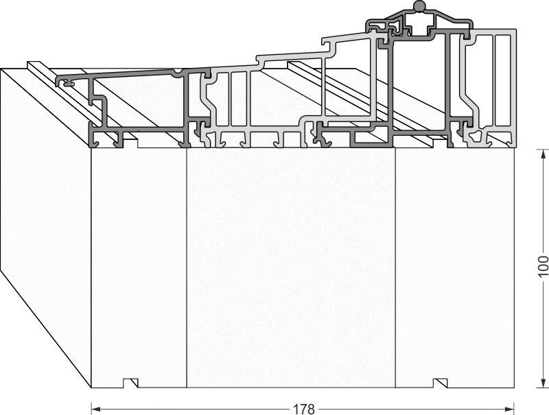
- 01 Typ:
- Unterbaudämmprofil HST
- Ausladung:
- 180 mm
- Höhe:
- 100 mm
- Schwellenprofil:
- VEKA Vekaslide 82



