- Home/
- greenteQ /
- Montage und Befestigungstechnik /
- Montagesysteme /
- Montage mit dem Fensterbank-Dämmkeil /
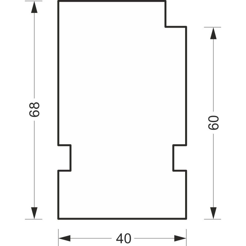
- greenteQ Fensterbankanschluss-Dämmprofil für WDVS hochdämmend 0,95 Uwert WDVS, 2350 x 40 x 60 mm, passend für Inoutic Prestige






greenteQ Fensterbankanschluss-Dämmprofil für WDVS hochdämmend 0,95 Uwert WDVS, 2350 x 40 x 60 mm, passend für Inoutic PrestigegreenteQ Fensterbankanschluss-Dämmprofil für WDVS hochdämmend 0,95 Uwert WDVS, 2350 x 4 …
Die hoch verdichtete und feste Eigenschaft vom greenteQ Fensterbankanschluss-Dämmprofil ermöglicht eine konstruktive Verschraubung der Aluminium-Aussenfensterbank im Dämmmaterial. Berücksichtigt wurde die Empfehlung der Gütegemeinschaft Wärmedämmung von Fassaden e. V. zur zurückgesetzten Befestigung der Aufkantung der Fensterbank und Untergreifung am hierfür geeigneten Blendrahmen bzw. Basisprofil unter Berücksichtigung der unteren Entwässerung im Blendrahmen bzw. Basisprofil. Bei der Ausführung ohne PVC müssen spezielle Fensterbankschrauben verwendet werden - bitte beachten sofern ein nachfolgendes Gewerk die Außenfensterbank montiert.
Sämtliche Abdichtungs- und Versiegelungsmaßnahmen wie Dichtbänder und Folien können sicher am Material angebracht werden.
Das greenteQ Fensterbankanschluss-Dämmprofil hat eine Grundlänge von 2.350 mm und ist Bestandteil des greenteQ Fensterbankanschluss-Dämmsystems für WDVS.
Vorteile des greenteQ Fensterbankanschluss-Dämmsystem für WDVS:
- Einfache und sichere Ausbildung der zweiten Dichtungsebene
- Fertigstellung des Bauanschlusses ohne Einbeziehung des nachfolgenden Gewerks
- KEINE WÄRMEBRÜCKE - KEINE KONDENSATION
- Ausgezeichnet wärmedämmend und höchst belastbar
- Unempfindlich gegenüber Feuchtigkeit und Frost – kein Quellen und Schwinden
- Keine Langzeitveränderung in Dimension und Festigkeit
- Geringes Gewicht - leichtes Handling
- Recyclebar und sortenrein - erfüllt alle Anforderungen an nachhaltiges und umweltfreundliches Bauen
- Ausgezeichnete Duktilität - Unebenheiten des Untergrundes werden schadensfrei ausgeglichen
- Alterungsbeständig, fäulnisbeständig und unverottbar
Technische Daten:
- Druckfestigkeit bei 10% Stauchung an EN 826 angelehnt: 1,40 N/mm²
- Druckfestigkeit bei 2% Stauchung an EN 826 angelehnt: 0,80 N/mm²
- Schraubenauszug bei 40 mm Verankerungslänge Ø4,5 mm / Ø7,5 mm: 505 / 837 N
- Zulässige Spannung (N/mm²) bei 2% Langzeitverformung und Dauerlast: 0,56 N/mm²
- Wärmeleitfähigkeit Bemessungswert nach EN 12667: 0,0387 (W/mK)
- Brandverhalten nach DIN 4102-1 B1
Herstellerinformation: VBH Holding GmbH, Siemensstraße 38,DE 70825, Korntal-Münchingen, Email: info@vbh.de