


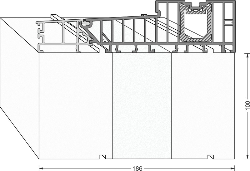
greenteQ Substructure Insulation Profile Lift&Slide door 2350x100/103x187.5, milled, without PVgreenteQ Substructure Insulation Profile Lift&Slide door 2350x100/103x187.5, milled, witho …
Product ID:2172763039
Height
EACH
Packaging unit: 4ST