


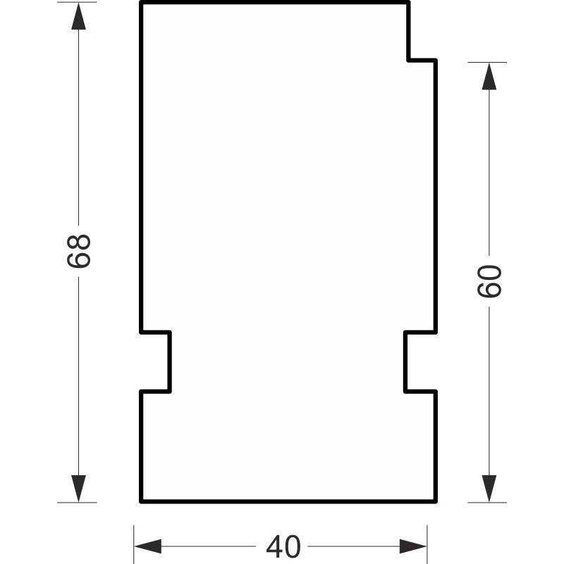
greenteQ Perfil aislante de unión de alféizares para sistemas de aislamiento térmico altamente aislante con valor U de 0,95, 2350 x 40 x 60 mm, apto pgreenteQ Perfil aislante de unión de alféizares para sistemas de aislamiento térmico altam …
ID del producto:2172760177
ST
Unidad de embalaje: 6ST