


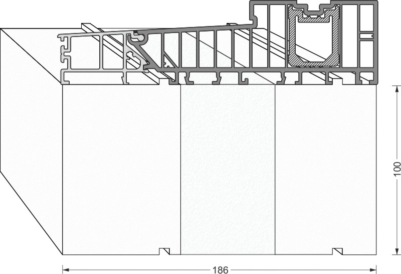
greenteQ perfil aislante de subestructura puerta corredera/elevable 2350x100/103x187,5, fresado, sin revestimiento de PVC para el sistema Siegenia EcogreenteQ perfil aislante de subestructura puerta corredera/elevable 2350x100/103x187,5, fr …

ID del producto:2172763039
Altura
ST
Unidad de embalaje: 4ST