


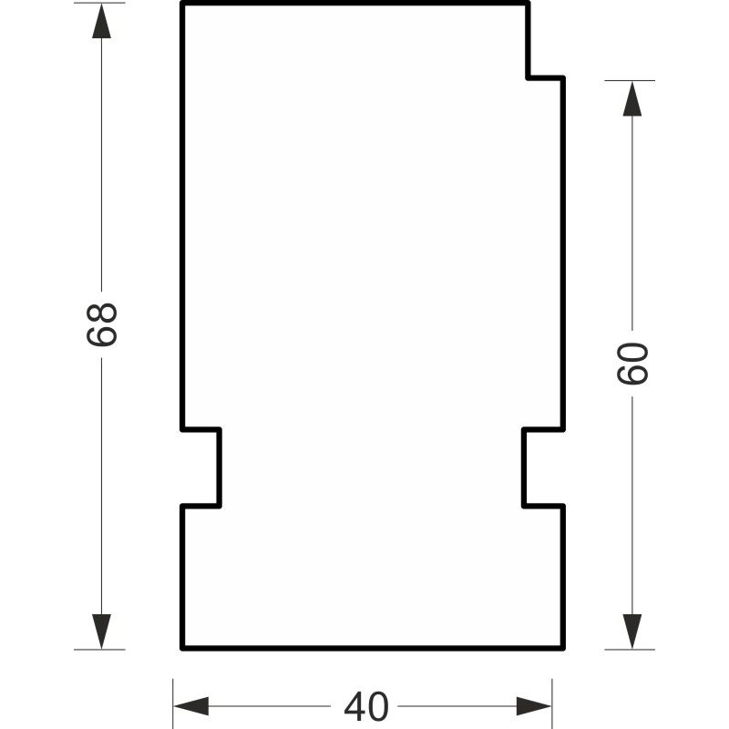
greenteQ spojni izolacijski profil za prozorsku dasku za ETICS, visokoizolacijski 0,95 Uvrijednost, 2350 x 40 x 60 mm, pogodan za Profine 76 AD, KBE 7greenteQ spojni izolacijski profil za prozorsku dasku za ETICS, visokoizolacijski 0,95 Uvr …
Broj artikla:2172760177
EACH
Prodajna jedinica: 6