


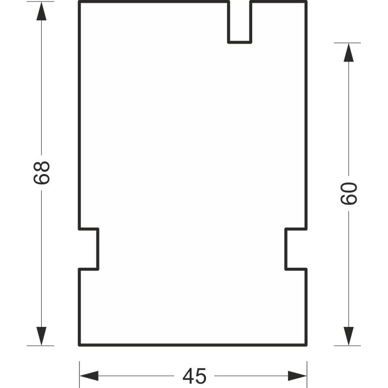
greenteQ spojni izolacijski profil za prozorsku dasku za ETICS, visokoizolacijski 0,84 Uvrijednost, 2350 x 45 x 60 mm, pogodan za Rehau Geneo / Euro 8greenteQ spojni izolacijski profil za prozorsku dasku za ETICS, visokoizolacijski 0,84 Uvr …
Broj artikla:2172760195
EACH
Prodajna jedinica: 6