


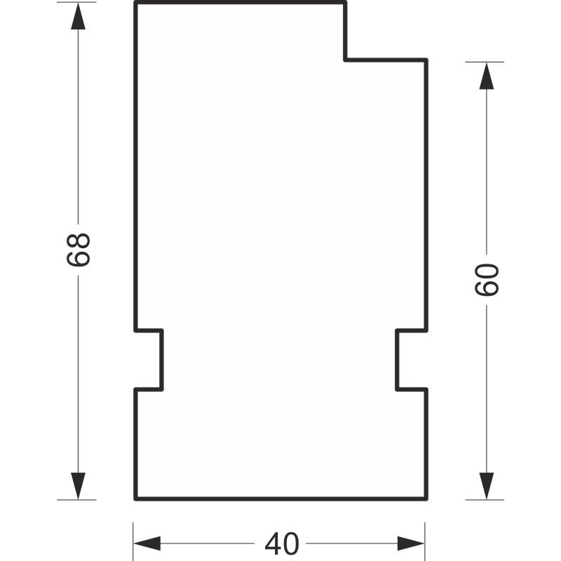
greenteQ spojni izolacijski profil za prozorske klupice za ETICS, visoka izolacija 0,95 U vrijednosti, 2350 x 40 x 60 mm, pogodan za Profine 70 ADgreenteQ spojni izolacijski profil za prozorske klupice za ETICS, visoka izolacija 0,95 U …
Broj artikla:2172760174
EACH
Prodajna jedinica: 6