


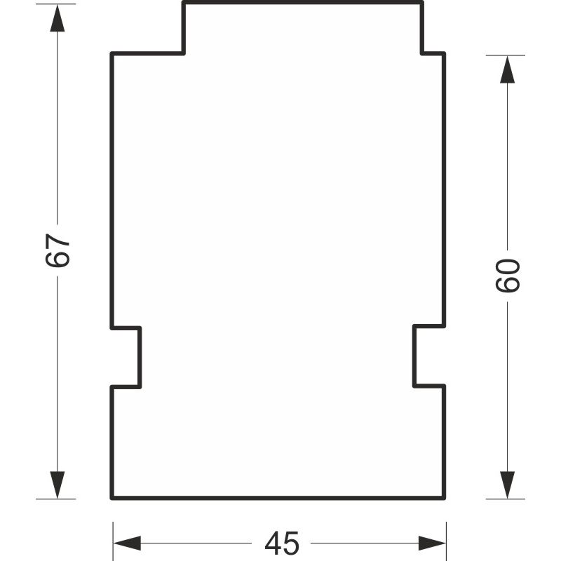
greenteQ spojni izolacijski profil za prozorsku dasku za ETICS, visokoizolacijski 0,84 Uvrijednost, 2350 x 45 x 60 mm, pogodan za Schüco Corona SI 82greenteQ spojni izolacijski profil za prozorsku dasku za ETICS, visokoizolacijski 0,84 Uvr …
Broj artikla:2172760190
EACH
Prodajna jedinica: 6