


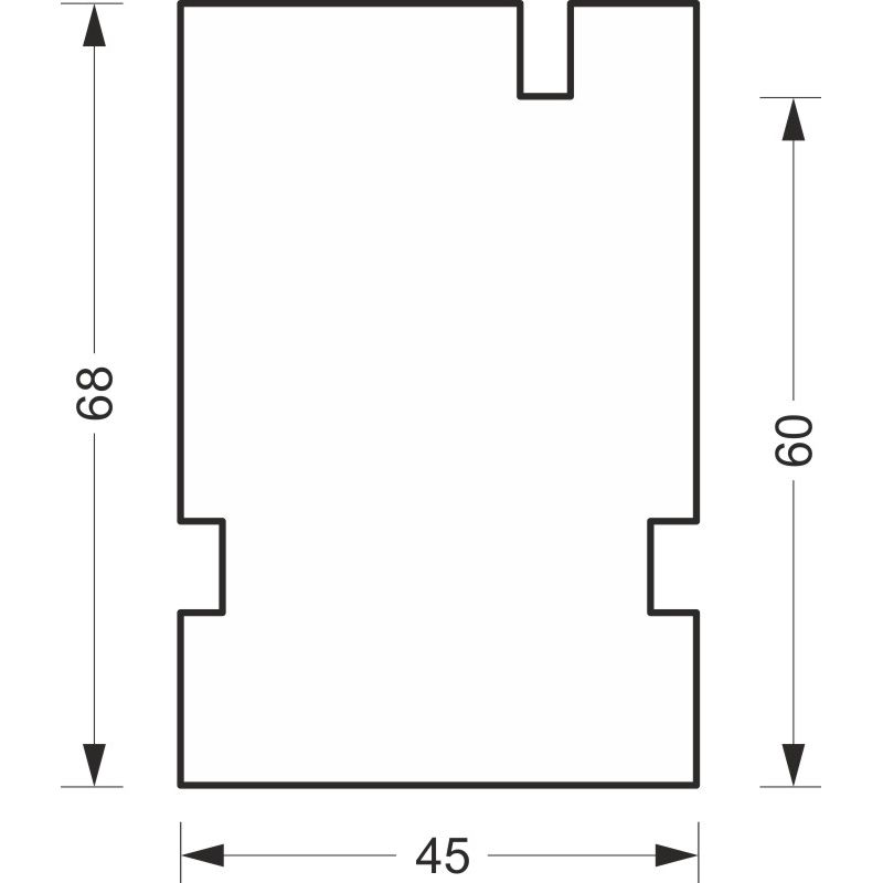
greenteQ Ablakpárkány csatlakozó szigetelőprofil ETICS-hez, magas hőszigetelő képességű 0,84 U-értékkel, 2350 x 45 x 60 mm, Rehau Geneo / Euro 86-hozgreenteQ Ablakpárkány csatlakozó szigetelőprofil ETICS-hez, magas hőszigetelő képességű 0, …
Termék ID:2172760195
ST
Csomagolási egység: 6ST