


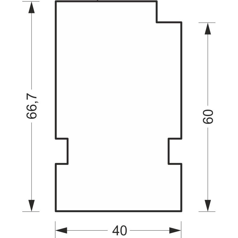
greenteQ Ablakpárkány csatlakozó szigetelőprofil ETICS-hez magas hőszigetelő 0,84 U-értékkel, 2350 x 40 x 61,3 mm, Veka Softline 70 / 76-hoz alkalmas.greenteQ Ablakpárkány csatlakozó szigetelőprofil ETICS-hez magas hőszigetelő 0,84 U-értékk …
Termék ID:2172760183
ST
Csomagolási egység: 6ST