


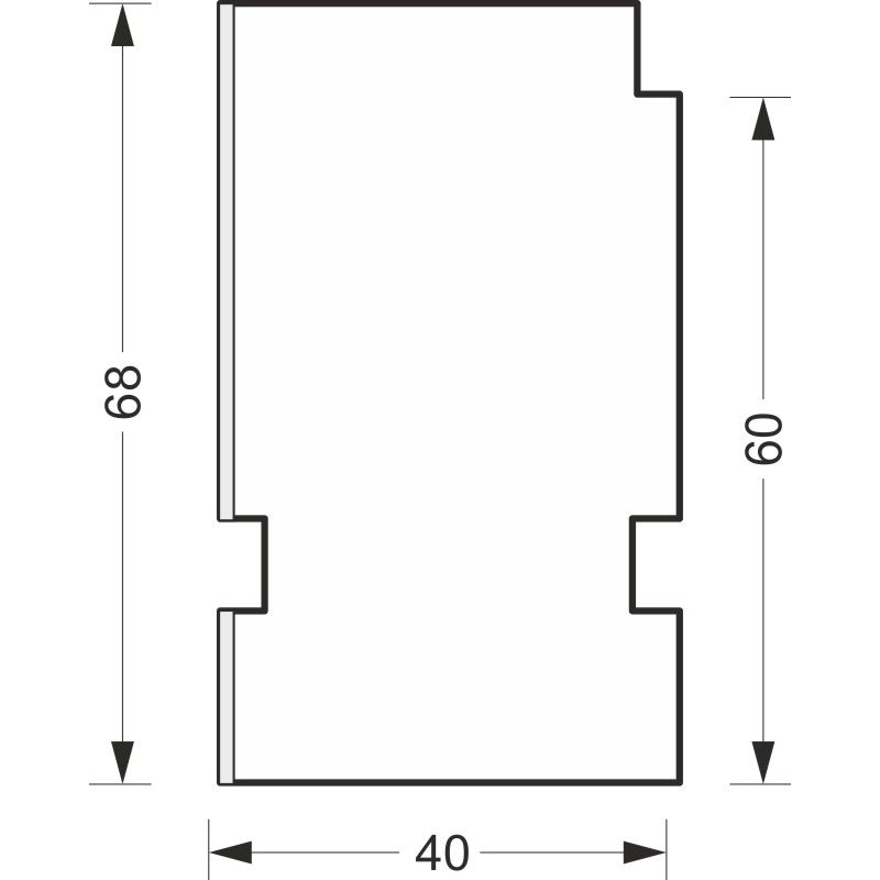
greenteQ Ablakpárkány csatlakozó szigetelőprofil ETICS-hez magas hőszigetelő 0,95 U-értékkel, 2350 x 40 x 60 mm, 1 mm PVC fehér az egyik oldalon, alkagreenteQ Ablakpárkány csatlakozó szigetelőprofil ETICS-hez magas hőszigetelő 0,95 U-értékk …
Termék ID:2172762733
ST
Csomagolási egység: 6ST