


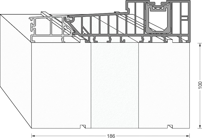
greenteQ aljzatszigetelő profil emelő/tolóajtó 2350x100/103x187,5, maratott, PVC bevonat nélkül a Siegenia Ecopass 190mm rendszerhezgreenteQ aljzatszigetelő profil emelő/tolóajtó 2350x100/103x187,5, maratott, PVC bevonat n …
Termék ID:2172763039
Magasság
ST
Csomagolási egység: 4ST