


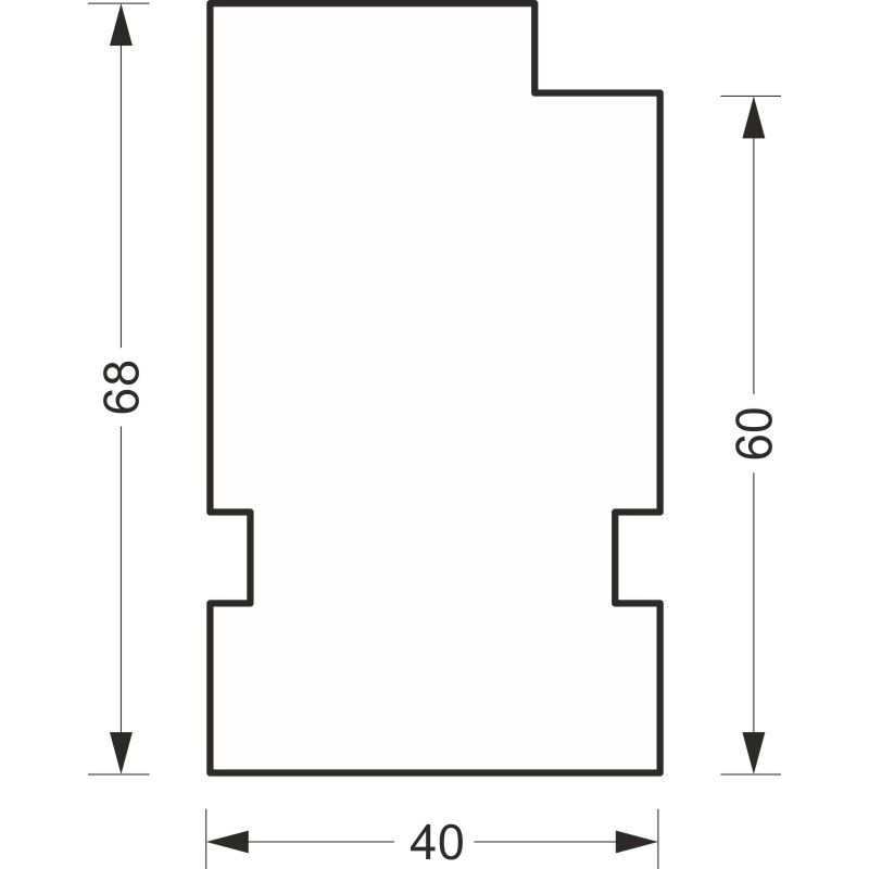
greenteQ Ablakpárkány csatlakozó szigetelőprofil ETICS-hez magas hőszigetelő képességű 0,95 U-értékkel, 2350 x 40 x 60 mm, alkalmas a Profine 70 AD-hegreenteQ Ablakpárkány csatlakozó szigetelőprofil ETICS-hez magas hőszigetelő képességű 0,9 …

Termék ID:2172760174
ST
Csomagolási egység: 6ST