


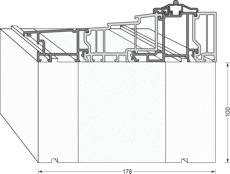
greenteQ Profilo isolante per sottostruttura porta alzante/scorrevole 2350x100/103x180, fresato, senza rivestimento in PVC per il sistema Vekaslide 82greenteQ Profilo isolante per sottostruttura porta alzante/scorrevole 2350x100/103x180, fr …

ID prodotto:2172763037
Altezza
ST
Unità di imballaggio: 4ST