


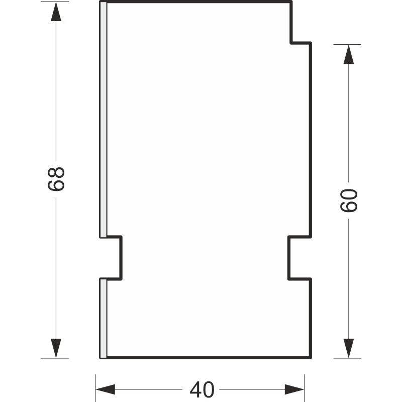
greenteQ palangės jungties izoliacija Professional l, skirta ETICS su aukšta izoliacija 0,95 U vertė, 2350greenteQ palangės jungties izoliacija Professional l, skirta ETICS su aukšta izoliacija 0, …
Produkto ID:2172762733
ST
Pakavimo vienetas: 6ST