


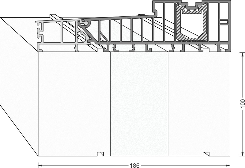
"greenteQ" pagrindo izoliacinis profilis "Lift&Slide" durys 2350x100/103x187,5, frezuotas, be PV"greenteQ" pagrindo izoliacinis profilis "Lift&Slide" durys 2350x100/103x187,5, frezuotas, …
Produkto ID:2172763039
Aukštis
ST
Pakavimo vienetas: 4ST