


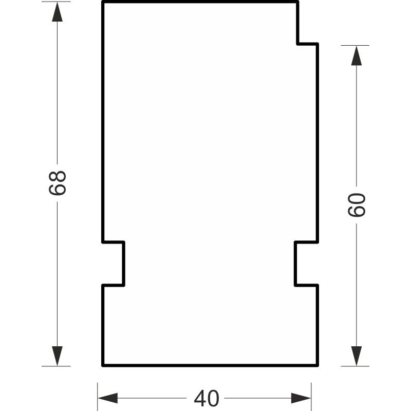
greenteQ vensterbankaansluiting isolatieprofiel voor ETICS sterk isolerend 0,95 U-waarde, 2350 x 40 x 60 mm, geschikt voor Profine 76 AD, KBE 76 AD, KgreenteQ vensterbankaansluiting isolatieprofiel voor ETICS sterk isolerend 0,95 U-waarde, …
Product ID:2172760177
ST
Verpakkingseenheid: 6ST