


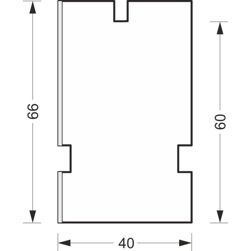
greenteQ vensterbankaansluiting isolatieprofiel voor ETICS sterk isolerend 0,95 U-waarde, 2350 x 40 x 60 mm, 1 mm PVC wit aan één zijde, geschikt voorgreenteQ vensterbankaansluiting isolatieprofiel voor ETICS sterk isolerend 0,95 U-waarde, …
Product ID:2172762739
ST
Verpakkingseenheid: 6ST