- Strona główna/
- greenteQ /
- Technologia montażu i mocowania /
- Systemy montażowe /
- Montaż z profilami izolacyjnymi konstrukcji nośnej Drzwi podnoszono-przesuwne /
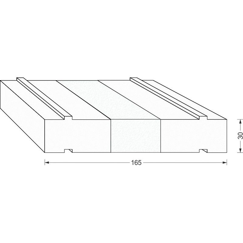
- greenteQ profil izolacyjny podkonstrukcji drzwi podnoszono-przesuwnych 2350x30/33x167, frezowany, bez powłoki PVC do systemu Schüco EasySlide CT70






greenteQ profil izolacyjny podkonstrukcji drzwi podnoszono-przesuwnych 2350x30/33x167, frezowany, bez powłoki PVC do systemu Schüco EasySlide CT70greenteQ profil izolacyjny podkonstrukcji drzwi podnoszono-przesuwnych 2350x30/33x167, fre …
Profil termoizolacyjny greenteQ do profili progowych zastępuje konwencjonalne profile podkonstrukcyjne z PVC i jest stosowany do oddzielonego termicznie podparcia drzwi podnoszonych i przesuwnych w celu spełnienia rosnących wymagań dotyczących izolacji termicznej (EnEV). Łatwa obróbka, doskonała izolacja termiczna i produkcja w dowolnym przekroju zapewniają optymalne rozwiązanie.
Profil izolacyjny greenteQ to materiał, który łączy maksymalną wytrzymałość z najlepszą izolacją termiczną. Waży około 1/3 mniej niż konwencjonalne profile izolacyjne podkonstrukcji i osiąga wartość lambda 0,045 W/mK. Doskonałe właściwości konstrukcyjne, takie jak wysoka sztywność, długoterminowa stabilność i możliwość przykręcania bez wstępnego nawiercania za pomocą standardowych wkrętów do konstrukcji okiennych / płyt wiórowych, otwierają potencjalne zastosowania w obszarach, w których w przeszłości często trzeba było akceptować mostki termiczne.
Trend w kierunku coraz większych drzwi podnoszono-przesuwnych prowadzi do odpowiednio większych ciężarów, które muszą być przenoszone na profil izolacyjny konstrukcji nośnej. Dzięki wysokiej wytrzymałości profilu izolacyjnego greenteQ, siły są łatwo przenoszone na mur, z wydłużeniem przy zerwaniu przekraczającym 10%. Oznacza to, że wszelkie nierówności podłoża są wyrównywane bez uszkodzeń, a wystające obszary, takie jak małe kamienie, są miejscowo wciskane w materiał bez pękania elementu. Możliwy jest również bezproblemowy montaż wsporników.
Otwarte dyfuzyjnie zachowanie gwarantuje długotrwałe i bezpieczne użytkowanie we wrażliwych obszarach styku z innymi materiałami. Jeśli mimo to dojdzie do nieplanowanego zawilgocenia, materiał umożliwia szybkie i wolne od uszkodzeń suszenie. Stabilność wymiarowa w zmiennych warunkach środowiskowych i odporność na cykle zamrażania-rozmrażania (oraz zachowanie izotropowe) gwarantują działanie przez wiele lat bez niespodzianek.
Różne wysokości odstawienia można elastycznie uzyskać za pomocą konturu układania.
- BRAK MOSTKÓW TERMICZNYCH - BRAK KONDENSACJI
- Doskonała izolacja termiczna i wysoka odporność
- Niewrażliwość na wilgoć i mróz - brak pęcznienia i kurczenia się
- Brak długoterminowych zmian wymiarów i wytrzymałości
- Niska waga - łatwa obsługa
- Nadaje się do recyklingu i nie jest mieszany - spełnia wszystkie wymogi zrównoważonego i przyjaznego dla środowiska budownictwa
- Odporność na starzenie, gnicie i butwienie
- Wszystkie środki uszczelniające i hydroizolacyjne, takie jak taśmy uszczelniające i folie, mogą być bezpiecznie przymocowane do materiału, również ognioodporne
- Możliwość dostosowania w dowolnym momencie na placu budowy
- Możliwość późniejszej obróbki przy użyciu standardowych narzędzi
- Wiele możliwych kombinacji
- Możliwość wykorzystania ścinków
- 2 solidne zewnętrzne warstwy bazowe o grubości 40 i 50 mm gwarantują bezpieczne przenoszenie obciążeń w szerokim zakresie. Bloki podporowe można bezpiecznie umieścić na zewnątrz.
- Wsporniki montażowe są przykręcane do ciągłego materiału nośnego bez wstępnego nawiercania.
- Śruby są wkręcane od góry w wystarczająco szeroką warstwę podstawy.
Dane techniczne:
- Profil izolacyjny podkonstrukcji greenteQ ma podstawową długość 2350 mm. Niestandardowe długości (maks. 6 m) i szerokości są również dostępne na życzenie.
- Wytrzymałość na ściskanie przy 10% ściskaniu w oparciu o normę EN 826: 1,75 N/mm²
- Wytrzymałość na ściskanie przy 2% ściskaniu na podstawie EN 826: 0,95 N/mm²
- Wycofanie śruby przy długości kotwienia 40 mm Ø7,5 mm: 825 N
- Dopuszczalne naprężenie (N/mm²) p
- Rzut:
- 167 mm
- Wysokość:
- 30 mm