


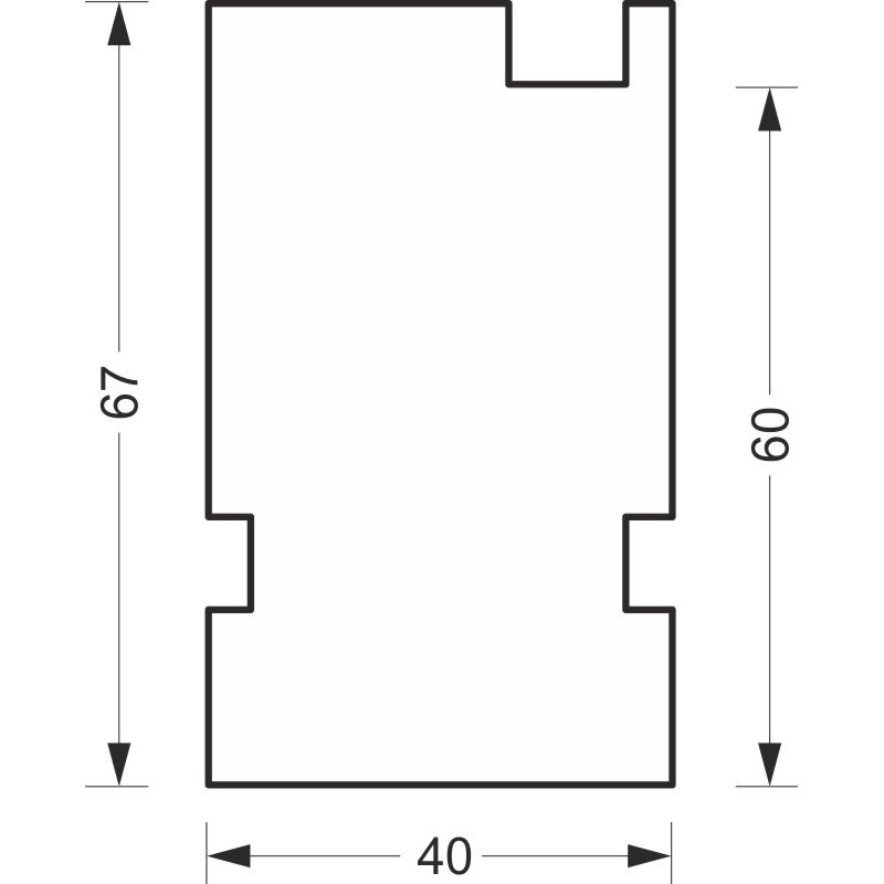
greenteQ Profil izolator de racord la pervazul ferestrei pentru ETICS foarte izolant 0,95 valoare U, 2350 x 40 x 60 mm, potrivit pentru Schüco CoronagreenteQ Profil izolator de racord la pervazul ferestrei pentru ETICS foarte izolant 0,95 …
ID-ul produsului:2172760189
ST
Unitate de ambalare: 6ST