


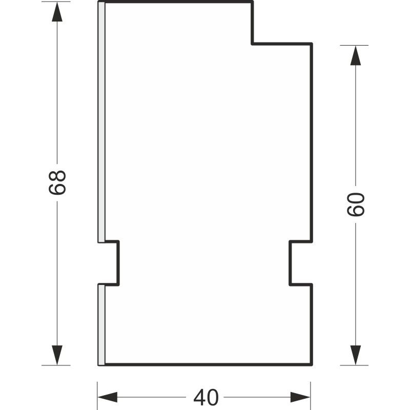
greenteQ Profil izolator de racord la pervazul ferestrei pentru ETICS foarte izolant 0,95 valoare U, 2350 x 40 x 60 mm, 1 mm PVC alb pe o parte, potrigreenteQ Profil izolator de racord la pervazul ferestrei pentru ETICS foarte izolant 0,95 …

ID-ul produsului:2172762729
ST
Unitate de ambalare: 6ST