


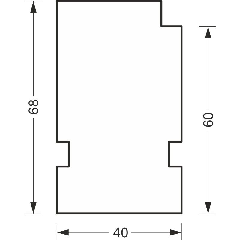
greenteQ Profil izolator de racordare a pervazului de fereastră pentru ETICS foarte izolant 0,95 valoare U ETICS, 2350 x 40 x 60 mm, potrivit pentru IgreenteQ Profil izolator de racordare a pervazului de fereastră pentru ETICS foarte izolan …

ID-ul produsului:2172760191
ST
Unitate de ambalare: 6ST