


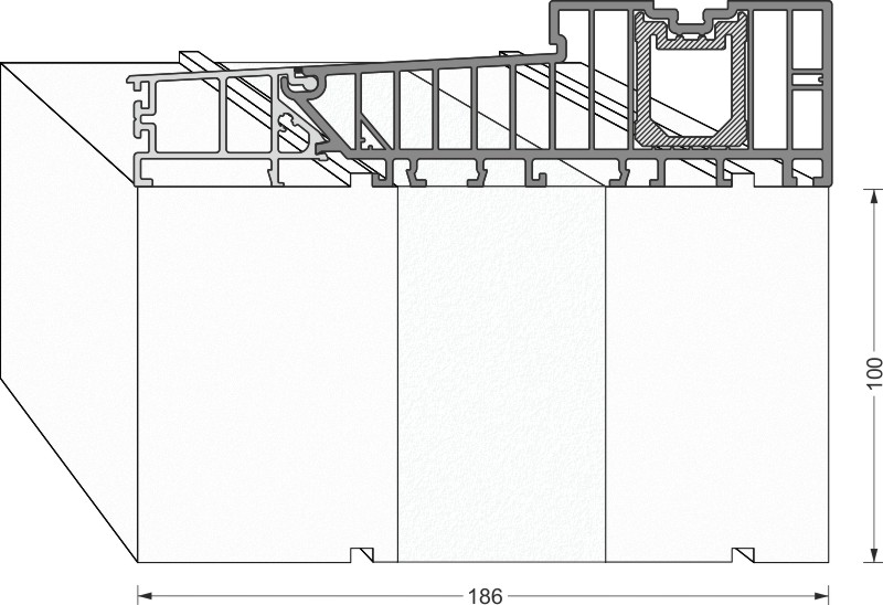
greenteQ подконструкционный изоляционный профиль подъемно-раздвижной двери 2350x100/103x187,5, фрезерованный, без ПВХ-покрытия для системы Siegenia EcgreenteQ подконструкционный изоляционный профиль подъемно-раздвижной двери 2350x100/103x18 …
ID товара:2172763039
Высота
ST
Единица упаковки: 4ST