


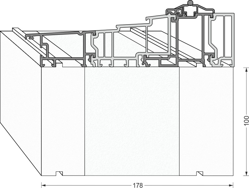
greenteQ Подвесной изоляционный профиль подъемно-раздвижной двери 2350x100/103x180, фрезерованный, без ПВХ-покрытия для системы Vekaslide 82greenteQ Подвесной изоляционный профиль подъемно-раздвижной двери 2350x100/103x180, фрезер …

ID товара:2172763037
Высота
ST
Единица упаковки: 4ST