


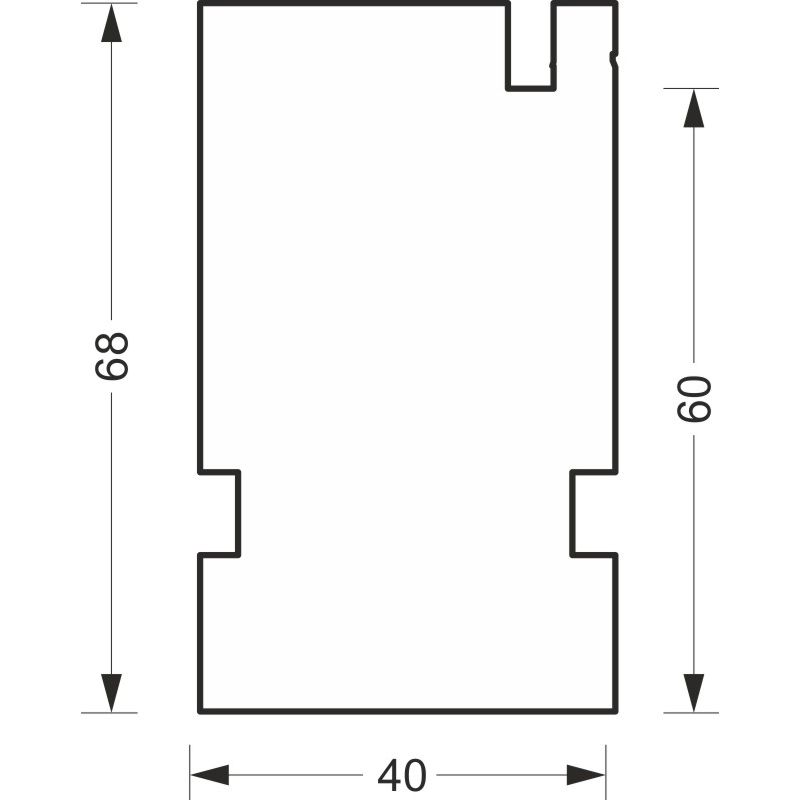
greenteQ Изоляционный профиль для соединения с подоконником для ETICS с высокой изоляцией 0,95 U-value, 2350 x 40 x 60 мм, подходит для Rehau BrillantgreenteQ Изоляционный профиль для соединения с подоконником для ETICS с высокой изоляцией …

ID товара:2172760194
ST
Единица упаковки: 6ST