


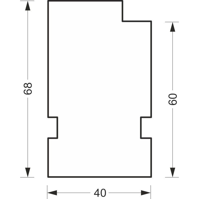
greenteQ Izolacijski profil za priključek okenske police za ETICS, visoko izolativen, U-vrednost 0,95, 2350 x 40 x 60 mm, primeren za Profine 70 ADgreenteQ Izolacijski profil za priključek okenske police za ETICS, visoko izolativen, U-vr …
ID izdelka:2172760174
ST
Enota pakiranja: 6ST