


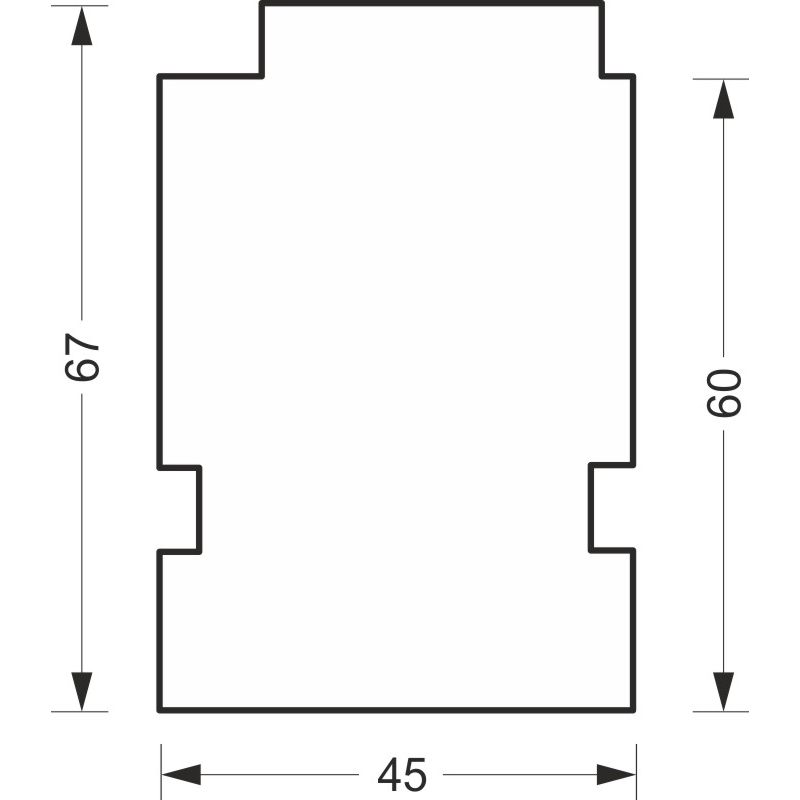
greenteQ Izolacijski profil za priključek okenske police za ETICS, visoko izolativen, U-vrednost 0,84, 2350 x 45 x 60 mm, primeren za Schüco Corona SIgreenteQ Izolacijski profil za priključek okenske police za ETICS, visoko izolativen, U-vr …

ID izdelka:2172760190
ST
Enota pakiranja: 6ST