


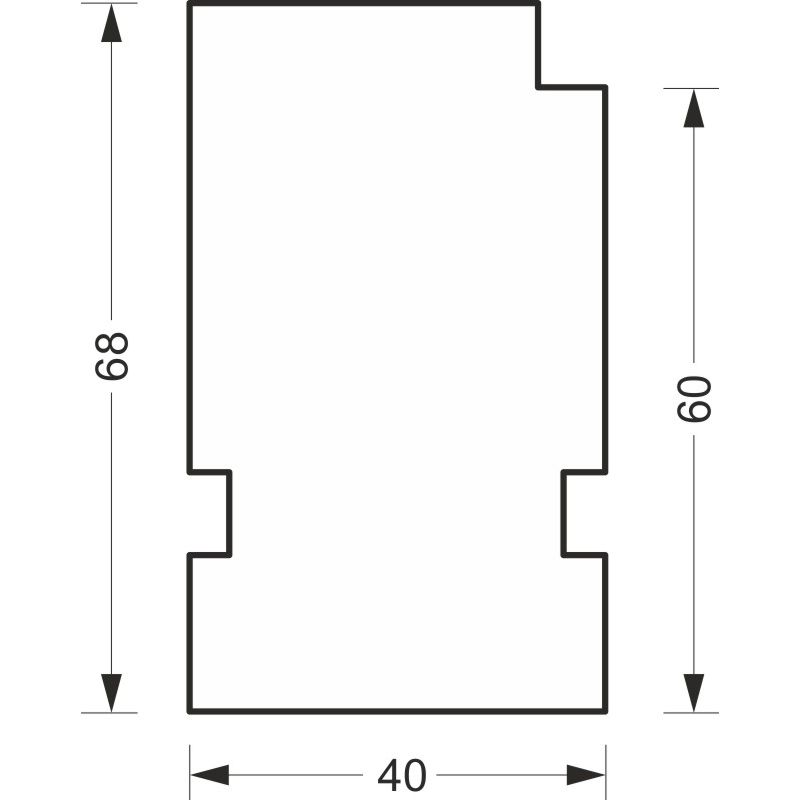
greenteQ Izolacijski profil za priključek okenske police za ETICS visoko izolativen ETICS z U-vrednostjo 0,95, 2350 x 40 x 60 mm, primeren za InouticgreenteQ Izolacijski profil za priključek okenske police za ETICS visoko izolativen ETICS …
ID izdelka:2172760191
ST
Enota pakiranja: 6ST