


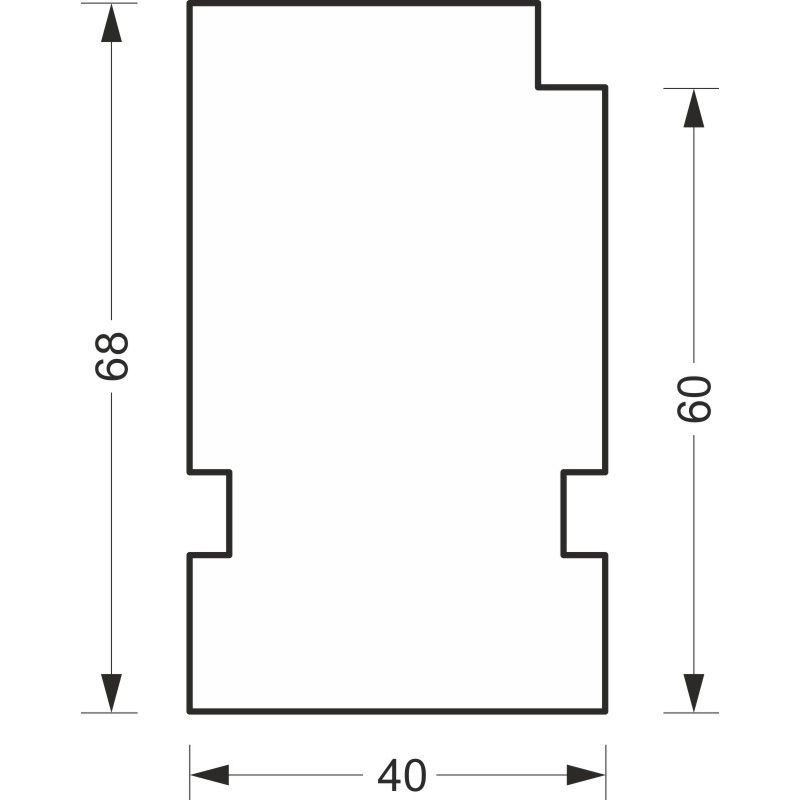
greenteQ Window sill connection insulation professional l for ETICS with high insulation 0.95 Uvalue ETICSgreenteQ Window sill connection insulation professional l for ETICS with high insulation 0 …
Product ID:2172760191
EACH
Packaging unit: 6ST