


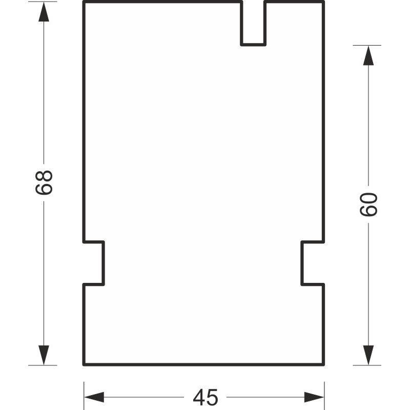
greenteQ Window sill connection insulation professional l for ETICS with high insulation 0.84 U-value, 2350greenteQ Window sill connection insulation professional l for ETICS with high insulation 0 …
Product ID:2172760195
EACH
Packaging unit: 6ST